Vendu

  • image01
  • image02
  • image03
  • image05
  • image06
  • image07

Appartement CHALON-SUR-SAONE (71100) - 3 pièces

59 500 €

Reference

17251A

Surface

90m2

Chambres

2

loi Carrez

75m2

Pièces

3

Lots

6

Charges

N.C€ /an

DPE

Non concerné

Description

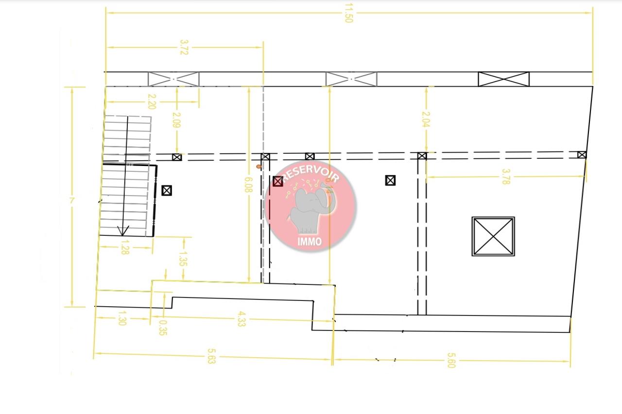
Appartement à aménager – Fort potentiel – Idéal projet investissement. Ancien atelier avec changement de destination en appartement effectué pour l'aménagement au 1er étage d'un T3 avec deux belles chambres avec espace buanderie et stockage vélo au RDC, le tout dans une petite copro en fond de cour au calme. Bien vendu en l’état – travaux d’aménagement à prévoir par l'acquéreur (création des pièces, finitions, équipements). Opportunité rare pour investisseur ou particulier souhaitant créer un bien sur-mesure. - Surface Carrez : 75 m² Prix du bien : 59 500 € Honoraires à la charge du vendeur La loi impose que le niveau de performance (DPE) des logements soit compris, à compter du 01/01/2028, entre les classes A et E Les informations sur les risques auxquels ce bien est exposé sont disponibles sur le site Géorisques : www.georisques.gouv.fr notre barème d'honoraires est consultable à l’adresse suivante : https://www.reservoirimmo.fr/tarifs-et-honoraires.html Le bien est soumis au statut de la copropriété. A propos de la copropriété : Nombre de lots : 6 Les charges prévisionnelles annuelles de la copropriété sont de : 400€ hors consommation personnelle d'eau. Pas de procédure Numéro SIREN de l’agence : 501395917 Carte pro 21022017000021989 Numéro registre d’agent commercial de l'agent immobilier : 789761566

Ce bien vous intéresse ?

Envoie en cours...

Agent

GUION NICOLAS

AgenceDIJON VICTOR HUGO